Mayfair Town House
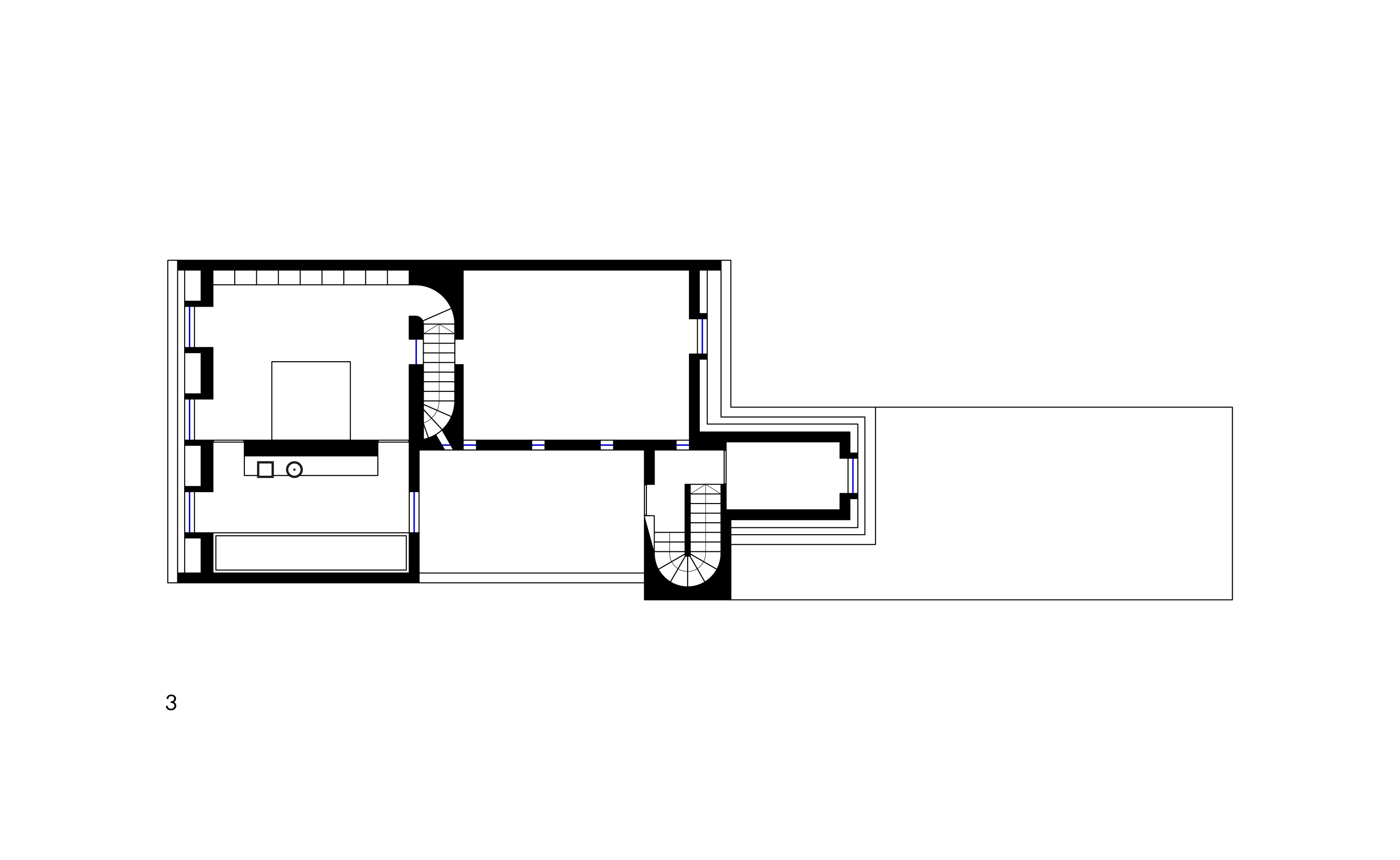
A contemporary interior formed behind a Grade-II-listed facade. Floors were removed to create a grand double-height reception space. Walls were opened up within the apartment to create a dual aspect, north-south vista with views over the Mayfair rooftops. Staircases concealed within the thickness of walls provide access to the principal bedroom suite and a rooftop eyrie that serves as a study. The main bathroom features a 5m long bath formed from black granite and travertine wash hand-basins carved by the stonemasons for Wells Cathedral. A hidden roof terrace looks over the reception and west towards Hyde Park.
New high-level windows bring shafts of midday sunlight into the main reception and gives views of the hidden terrace.










